Residential Major Addition & Renovation
6th St. S. Arlington, VA
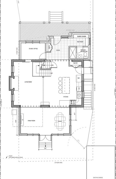
South Arlington’s rapid revitalization left behind this small 1939 brick Cape Cod house as newer, larger, and recently renovated homes were starting to dominate the area. The owner-developer wanted to accomplish a major transformation in order to maximize the return on investment and offer to the market an appropriate size home with all the trendy updates. Keeping all of this in mind, ALine Architecture designed a 4-bedroom, 5-bathroom house with front and rear additions, a new second floor, and a complete remodel of the kitchen and bathrooms.
ALine Architecture collaborated with the developer on the building concepts, permits, and construction documents. Portions of the original footprint were non-conforming to the current zoning code. ALine came up with creative solutions to comply with the zoning ordinance, and ensure the desired 3,000+ SF overall house size was achieved while integrating the owner’s ideal floor plan, flow, and aesthetics.
Area: 3,000 SF
Type: Residential
Completed: 2016







